Metal Slitting Line For CZ Purlin Production
2026-04-07 17:41Metal slitting lines cut large metal coils to a specific width, producing high-precision narrow strips. These strips are then fed into a roll forming machine, where they undergo uncoiling, punching, forming, and shearing processes to produce the final product, which is then used in a variety of customer projects. In steel structure projects, metal slitting machines are often used in conjunction with CZ purlin forming machines. Many customers also have a need for metal slitting lines when selecting CZ purlin forming machines.
As a manufacturer and supplier of both metal slitting lines and CZ purlin forming machines, KINGREAL will detail how metal slitting machines provide high-quality raw materials for CZ purlin production.
The Relationship Between Metal Slitting Machines and CZ Purlin Production
The metal slitting line and the CZ purlin forming machine work together to form a complete CZ purlin production process chain. The narrow strips of material precisely slitted by the metal slitting line are the direct raw materials required by the CZ purlin forming machine.
C purlin and Z purlin produced by CZ purlin forming machines are core supporting components for the roof and wall frames of steel structure buildings, playing a crucial role in load transfer and structural stability. Based on actual construction needs, these purlins typically require metal coils with a thickness of 2mm or more. This necessitates that the matching metal slitting machine be capable of processing medium-thick plates and accurately handling raw materials meeting strength requirements.
The core process of the metal slitting line is clear and rigorous. First, a large-format metal coil is fed into the metal slitting machine. After being smoothly uncoiled by the decoiler, it is conveyed to the slitter by the feeding device. Under the synergistic action of the precision cutter shaft and disc blades, the coil is longitudinally slit into multiple narrow strips of specific widths required by the customer. Finally, the coil is neatly rewound by the recoiler, completing the entire slitting process. The produced narrow strips are then transported to the CZ purlin forming machine manufacturing plant for subsequent processing.
Once the narrow strips of material produced by the metal slitting machine are fed into the CZ purlin forming machine, a new round of precision processing begins: First, the decoiler smoothly feeds the material, and the leveling unit eliminates deformation defects. Then, according to design requirements, punching operations are performed to precisely machine the installation holes. Next, through continuous extrusion by multiple forming rollers, the sheet material is gradually shaped into a C-shaped or Z-shaped cross-section. Finally, the cutting station precisely cuts the material to the specified length, ultimately producing C purlins or Z purlins that meet the project's requirements.
KINGREAL CZ purlin forming machines can reliably produce standard CZ purlins within a defined size range, fully meeting the needs of mainstream construction projects:
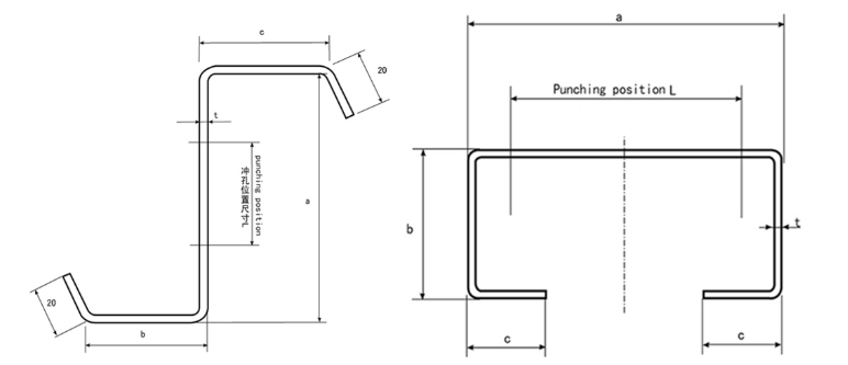
C purlin: Wing width (A)=80-300mm; Edge width (B)=35-80mm; Edge height (C)=10-25mm; Plate thickness (T)=1.5-3mm
Z purlin: Wing width (A)=120-300mm; Edge width (B)=35-80mm; Edge height (C)=10-25mm; Plate thickness (T)=1.5-3mm

For customized CZ purlin specifications, KINGREAL has a professional R&D team that can design and optimize the CZ purlin forming machine based on detailed drawings and physical samples provided by customers. By adjusting the mold structure and upgrading the control system, precise forming of non-standard CZ purlin specifications can be achieved, comprehensively meeting the diverse needs of engineering projects.
Why is a Metal Slitting Line Important for CZ Production?
The metal slitting line is an essential core piece of equipment in the production process of CZ purlins. It is the first critical step in the entire CZ purlin production process, and its performance and precision directly determine the quality and efficiency of subsequent processing. The quality of the narrow strips of material produced by the metal slitting machine directly affects the punching, forming, and cutting precision of CZ purlin production, ultimately determining the overall quality of the purlin product. Punching precision depends on the flatness and width consistency of the sheet material edges. If the metal slitting line's cutting precision is insufficient, burrs or width deviations on the sheet material edges will lead to punching position misalignment and reduced hole accuracy. Forming precision depends on the stability of the sheet material feeding. If the narrow strips produced by the metal slitting machine have defects such as warping or deformation, it will cause problems such as material jamming and incomplete forming during the forming process. Cutting precision is also affected by the slitting quality; uneven sheet material edges will result in excessive burrs on the cut surface and excessive dimensional deviations.
A high-quality metal slitting line can provide high-quality narrow strips of CZ purlins through precise slitting and stable operation, avoiding processing defects at the source and achieving efficient and high-precision production. Conversely, a poor-quality metal slitting machine will not only reduce overall production efficiency but also increase raw material waste and subsequent rework costs, hindering the development of CZ purlin production. Therefore, selecting a reliable and high-precision metal slitting line is a key measure to ensure the smooth progress of CZ purlin production.
Optimization of KINGREAL Metal Slitting Machine
To ensure the quality of finished products for customers' steel structure projects and optimize the overall CZ purlin production process, KINGREAL has innovatively upgraded and optimized metal slitting machines.
Speed—KINGREAL metal slitting lines can operate at a maximum speed of 230m/min. Simultaneously, the equipment supports flexible adjustment of the operating speed according to parameters such as project production progress, material thickness, and slitting width, enabling KINGREAL metal slitting machines to adapt to CZ purlin production projects of different scales and types, significantly improving production flexibility.
Automation – The core configuration of the KINGREAL metal slitting line includes key components such as a hydraulic decoiler, slitter, recoiler, and PLC control system. Operators only need to preset parameters such as slitting width, roll thickness, and running speed in the control system, and the metal slitting machine can automatically complete all processes including unwinding, feeding, slitting, and rewinding, minimizing manual intervention.
Quality – KINGREAL strictly controls the selection of core electrical components for the metal slitting line, using products from internationally renowned brands such as ABB, Siemens, Schneider Electric, and Yaskawa to ensure long-term stable operation and slitting accuracy.


As a core supporting equipment for CZ profile production, the metal slitting machine provides high-quality raw materials through precise slitting, ensuring the precision and quality of CZ purlins from the source. If you need more information about metal slitting lines and CZ purlin forming machines, or require a complete solution for metal slitting machines and CZ purlin forming machines, please contact KINGREAL directly. We will provide you with professional technical consultation and customized services to jointly promote the high-quality development of CZ purlin production!